SQUARE 2

Cena:

Holodom plus

108 680 €

Hrubá stavba

52 270 €

Na kľúč v prevedení Štandard

120 990 €

* cena platná od 01.12.2024 do odvolania
* ponuka platí pre stavbu na rovinatom pozemku
* uvedené ceny sú bez DPH

Popis domu

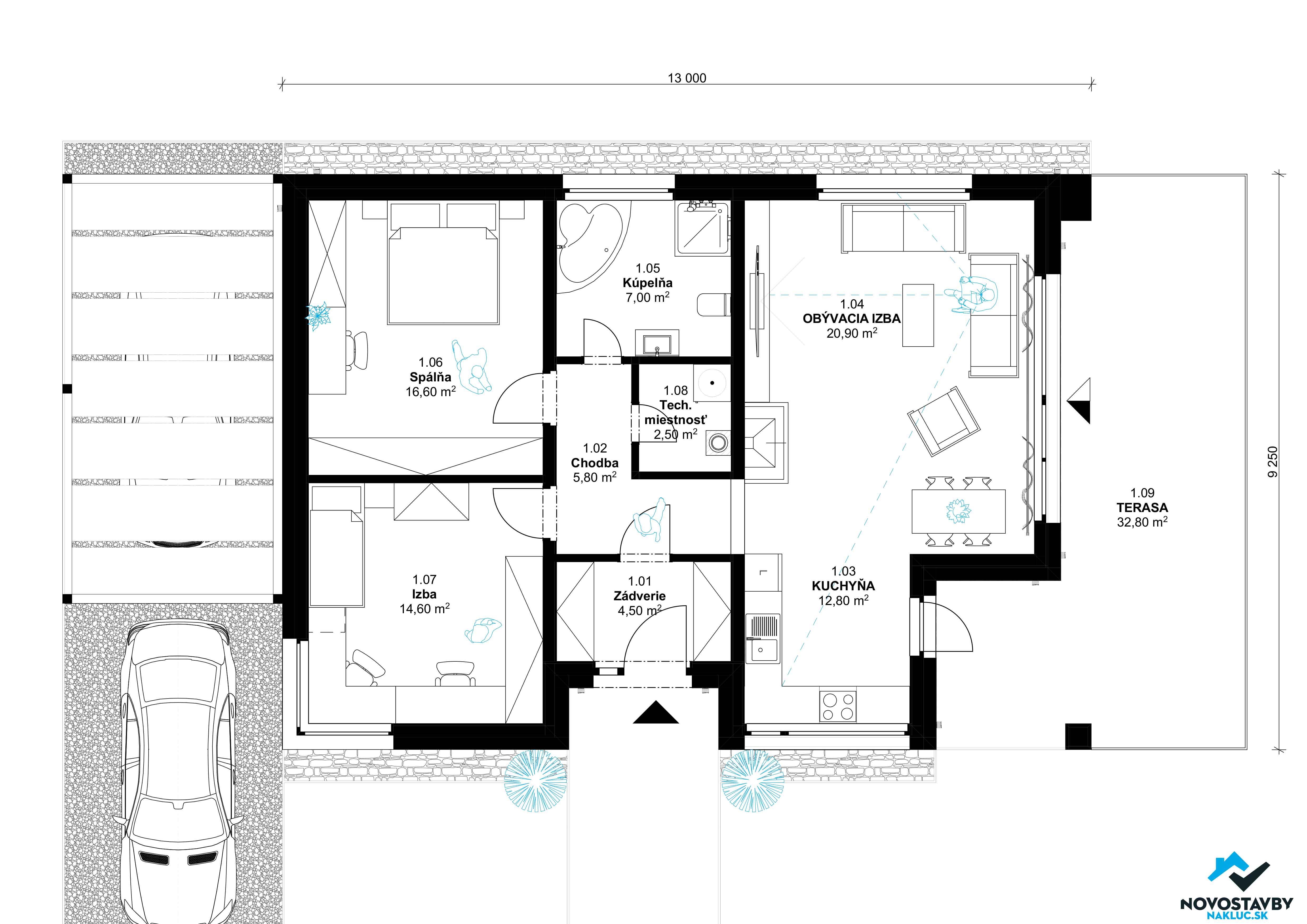
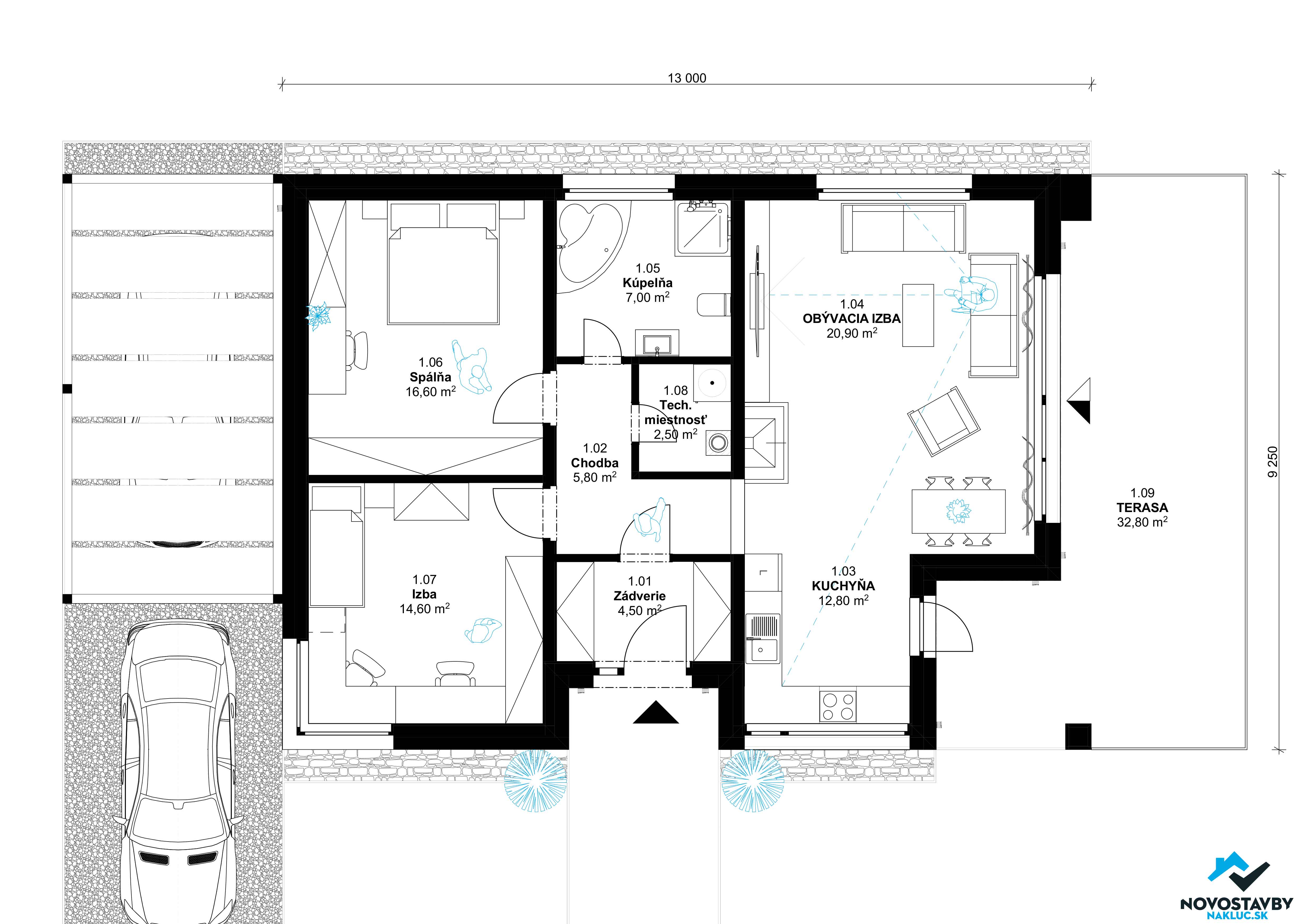
SQARE 2 je praktický 3-izbový bungalov s kompaktnou dispozíciou, malou zastavanou plochou a jednoduchým konštrukčným riešením.

Základná špecifikácia

Typ stavby:

1

Obytné miestnosti:

3

Celková úžitková plocha:

85 m2

Obostavaný priestor:

104 m3

Zastavaná plocha:

112 m2

Vonkajšie rozmery obostavaného priestoru:

12,5 x 9

Výška hrebeňa strechy:

4.20 m

Typ a sklon strechy:

plochá

Minimálne rozmery pozemku:

17 x 16

Produktový list / pôdorysy

Stiahnúť v PDF

Chcete zmeniť projekt?

Bezplatne a bez zmeny výslednej ceny je v projekte možné zo strany klienta robiť malé úpravy v dispozičnom riešení interiéru stavby (miestnosti, posúvať priečky ...). zrkadlovo otáčať stavbu. zmeniť umiestnenie terasovej plochy = v rámci projekčných možnosti

Galéria

© 2025 | GDPR | Ochrana osobných údajov | Tvorba webu GFXpulse