SCENIC 9

Cena:

Holodom plus

114 050 €

Hrubá stavba

57 350 €

Na kľúč v prevedení Štandard

125 990 €

* cena platná od 01.12.2024 do odvolania
* ponuka platí pre stavbu na rovinatom pozemku
* uvedené ceny sú bez DPH

Popis domu

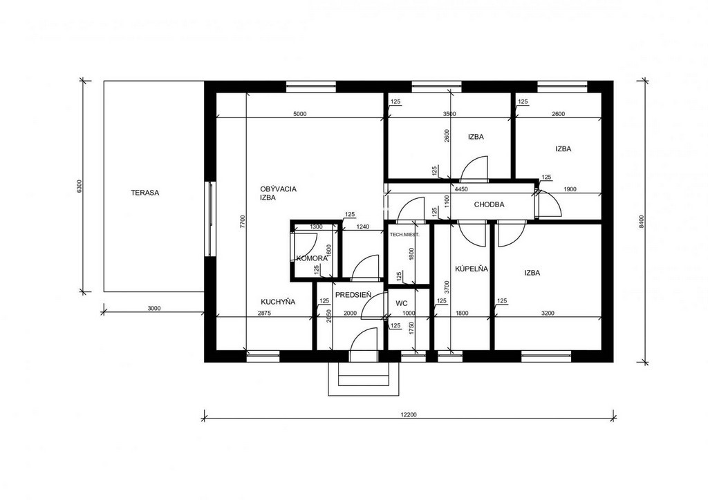
Rodinný dom SCENIC 9 je kompaktný 4-izbový dom s maximálnym využitím priestoru. Obývacia izba spojená s veľkou kuchyňou, nočná časť  je oddelená v tichej zadnej časti domu.

Základná špecifikácia

Typ stavby:

1

Obytné miestnosti:

4

Celková úžitková plocha:

88 m2

Obostavaný priestor:

109 m3

Zastavaná plocha:

129 m2

Vonkajšie rozmery obostavaného priestoru:

12,5 x 8,7

Výška hrebeňa strechy:

5.1 m

Typ a sklon strechy:

valbová / 25°

Minimálne rozmery pozemku:

18,00 x 20,00

Produktový list / pôdorysy

Stiahnúť v PDF

Chcete zmeniť projekt?

Bezplatne a bez zmeny výslednej ceny je v projekte možné zo strany klienta robiť malé úpravy v dispozičnom riešení interiéru stavby (miestnosti, posúvať priečky ...). zrkadlovo otáčať stavbu. zmeniť umiestnenie terasovej plochy = v rámci projekčných možnosti

Galéria

© 2025 | GDPR | Ochrana osobných údajov | Tvorba webu GFXpulse