SCENIC 6

Cena:

Holodom plus

124 670 €

Hrubá stavba

60 630 €

Na kľúč v prevedení Štandard

138 300 €

* cena platná od 01.12.2024 do odvolania
* ponuka platí pre stavbu na rovinatom pozemku
* uvedené ceny sú bez DPH

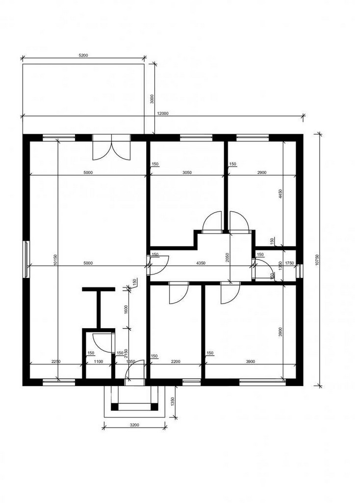
Popis domu

Bungalov SCENIC 6 je projekt domu vhodný pre 4-5 člennú rodinu, ktorá uprednostňuje spojenie praktického života v kombinácii s prírodným štýlom. Jednoduchosť a elegancia tohto bungalovu mu zaručuje nadčasový štýl, ktorý si ihneď obľúbite. Celková úžitková plocha projektu domu je príjemných 106 m2.

Základná špecifikácia

Typ stavby:

1

Obytné miestnosti:

4

Celková úžitková plocha:

106 m2

Obostavaný priestor:

135 m3

Zastavaná plocha:

153 m2

Vonkajšie rozmery obostavaného priestoru:

12,3 x 11,00

Výška hrebeňa strechy:

5.10 m

Typ a sklon strechy:

valbová / 25°

Minimálne rozmery pozemku:

17,00 x 23,00

Produktový list / pôdorysy

Stiahnúť v PDF

Chcete zmeniť projekt?

Bezplatne a bez zmeny výslednej ceny je v projekte možné zo strany klienta robiť malé úpravy v dispozičnom riešení interiéru stavby (miestnosti, posúvať priečky ...). zrkadlovo otáčať stavbu. zmeniť umiestnenie terasovej plochy = v rámci projekčných možnosti

Galéria

© 2025 | GDPR | Ochrana osobných údajov | Tvorba webu GFXpulse