SCENIC 11

Cena:

Holodom plus

164 500 €

Hrubá stavba

89 400 €

Na kľúč v prevedení Štandard

184 980 €

* cena platná od 01.12.2024 do odvolania
* ponuka platí pre stavbu na rovinatom pozemku
* uvedené ceny sú bez DPH

Popis domu

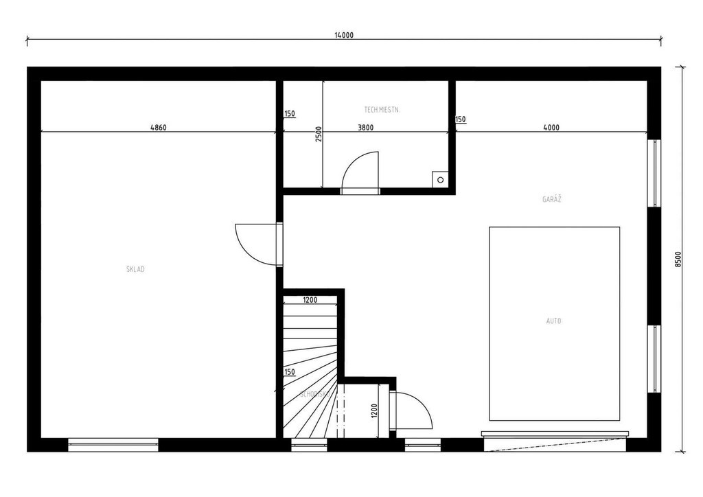
Dvojpodlažný projekt SCENIC 11 je komfortný 6-izbový rodinný dom. Obývacia izba spojená s veľkou kuchyňou, nočná časť  je oddelená v tichej zadnej časti domu, menšia izba môže slúžiť ako pracovňa alebo hosťovská. Priestranná garáž je prepojená s obytnou zónou. Celková úžitková plocha je veľkorysých 186 m2.

 

Základná špecifikácia

Typ stavby:

2

Obytné miestnosti:

4

Celková úžitková plocha:

186 m2

Obostavaný priestor:

m3

Zastavaná plocha:

119 m2

Vonkajšie rozmery obostavaného priestoru:

14,0 x 8,5

Výška hrebeňa strechy:

4.56 m

Typ a sklon strechy:

sedlová / 20°

Minimálne rozmery pozemku:

16,0 x 18,0

Produktový list / pôdorysy

Stiahnúť v PDF

Chcete zmeniť projekt?

Bezplatne a bez zmeny výslednej ceny je v projekte možné zo strany klienta robiť malé úpravy v dispozičnom riešení interiéru stavby (miestnosti, posúvať priečky ...). zrkadlovo otáčať stavbu. zmeniť umiestnenie terasovej plochy = v rámci projekčných možnosti

Galéria

© 2025 | GDPR | Ochrana osobných údajov | Tvorba webu GFXpulse