Moderna 3

Cena:

Holodom plus

169 350 €

Hrubá stavba

82 810 €

Na kľúč v prevedení Štandard

202 800 €

* cena platná od 01.12.2024 do odvolania
* ponuka platí pre stavbu na rovinatom pozemku
* uvedené ceny sú bez DPH

Popis domu

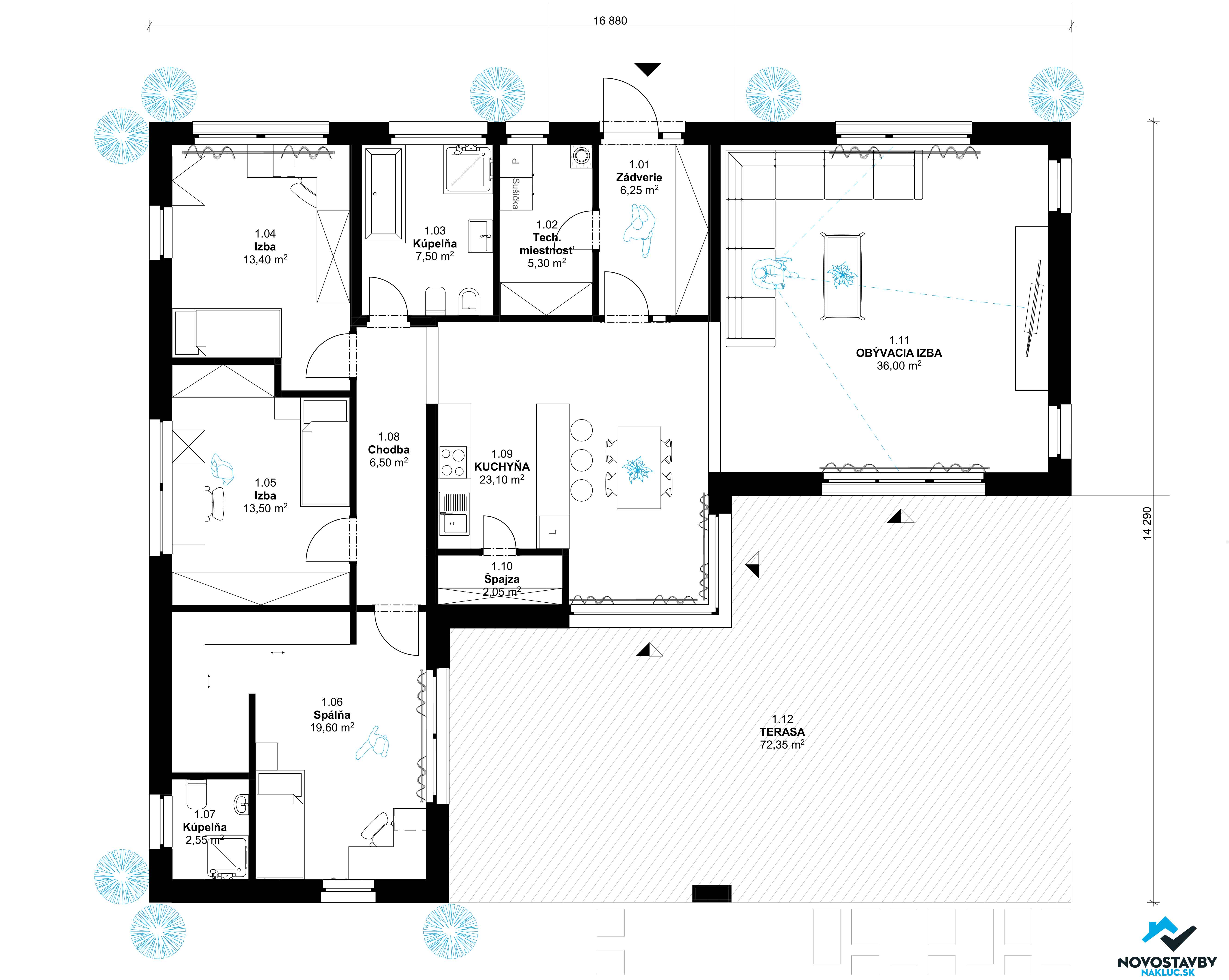
MODERNA 3 je kompaktný 4-izbový rodinný dom s maximálnym využitím priestoru. Dostatočný pocit súkromia vďaka prekrytej terase.

Základná špecifikácia

Typ stavby:

1

Obytné miestnosti:

4

Celková úžitková plocha:

135.75 m2

Obostavaný priestor:

608.4 m3

Zastavaná plocha:

169 m2

Vonkajšie rozmery obostavaného priestoru:

16,88 x 14,29

Výška hrebeňa strechy:

m

Typ a sklon strechy:

plochá

Minimálne rozmery pozemku:

22 x 20

Produktový list / pôdorysy

Stiahnúť v PDF

Chcete zmeniť projekt?

Bezplatne a bez zmeny výslednej ceny je v projekte možné zo strany klienta robiť malé úpravy v dispozičnom riešení interiéru stavby (miestnosti, posúvať priečky ...). zrkadlovo otáčať stavbu. zmeniť umiestnenie terasovej plochy = v rámci projekčných možnosti

Galéria

© 2025 | GDPR | Ochrana osobných údajov | Tvorba webu GFXpulse