ASTRA 6

Cena:

Holodom plus

128 140 €

Hrubá stavba

60 980 €

Na kľúč v prevedení Štandard

143 990 €

* cena platná od 01.12.2024 do odvolania
* ponuka platí pre stavbu na rovinatom pozemku
* uvedené ceny sú bez DPH

Popis domu

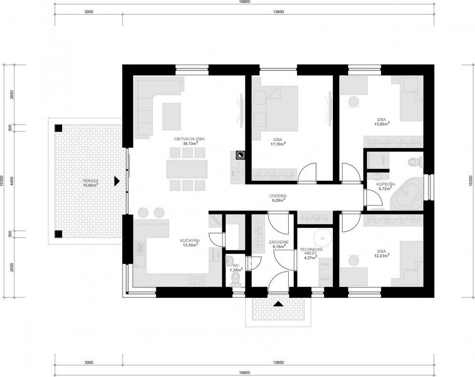
Bungalov Astra 6 je dom strednej veľkostnej kategórie. Svojimi vnútornými priestormi uspokojí nároky na bývanie 4-5 člennej rodiny.

Základná špecifikácia

Typ stavby:

1

Obytné miestnosti:

4

Celková úžitková plocha:

113 m2

Obostavaný priestor:

142 m3

Zastavaná plocha:

160 m2

Vonkajšie rozmery obostavaného priestoru:

13,8 x 10,3

Výška hrebeňa strechy:

5.33 m

Typ a sklon strechy:

sedlová / 25°

Minimálne rozmery pozemku:

21 x 18

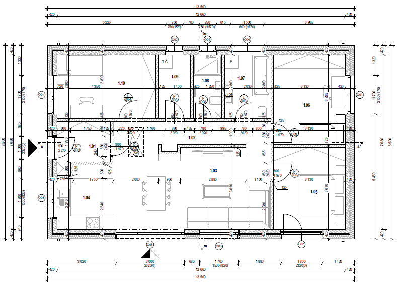
Produktový list / pôdorysy

Stiahnúť v PDF

Chcete zmeniť projekt?

Bezplatne a bez zmeny výslednej ceny je v projekte možné zo strany klienta robiť malé úpravy v dispozičnom riešení interiéru stavby (miestnosti, posúvať priečky ...). zrkadlovo otáčať stavbu. zmeniť umiestnenie terasovej plochy = v rámci projekčných možnosti

Galéria

© 2025 | GDPR | Ochrana osobných údajov | Tvorba webu GFXpulse