Cena:
Holodom plus
126 240 €
Hrubá stavba
63 600 €
Na kľúč v prevedení Štandard
143 980 €
* cena platná od 01.12.2024 do odvolania
* ponuka platí pre stavbu na rovinatom pozemku
* uvedené ceny sú bez DPH
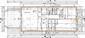
Bungalov Astra 4 je projekt domu vhodný pre 3-4 člennú rodinu, ktorá uprednostňuje spojenie praktického života v kombinácii s prírodným štýlom. Jednoduchosť a elegancia tohto bungalovu mu zaručuje nadčasový štýl, ktorý si ihneď obľúbite. Celková úžitková plocha projektu domu je príjemných 102 m2.
Typ stavby:
Obytné miestnosti:
Celková úžitková plocha:
Obostavaný priestor:
Zastavaná plocha:
Vonkajšie rozmery obostavaného priestoru:
Výška hrebeňa strechy:
Typ a sklon strechy:
Minimálne rozmery pozemku:
Stiahnúť v PDF
Bezplatne a bez zmeny výslednej ceny je v projekte možné zo strany klienta robiť malé úpravy v dispozičnom riešení interiéru stavby (miestnosti, posúvať priečky ...). zrkadlovo otáčať stavbu. zmeniť umiestnenie terasovej plochy = v rámci projekčných možnosti

