ASTRA 1 s garážou

Cena:

Holodom plus

117 480 €

Hrubá stavba

57 240 €

Na kľúč v prevedení Štandard

131 980 €

* cena platná od 01.12.2024 do odvolania
* ponuka platí pre stavbu na rovinatom pozemku
* uvedené ceny sú bez DPH

Popis domu

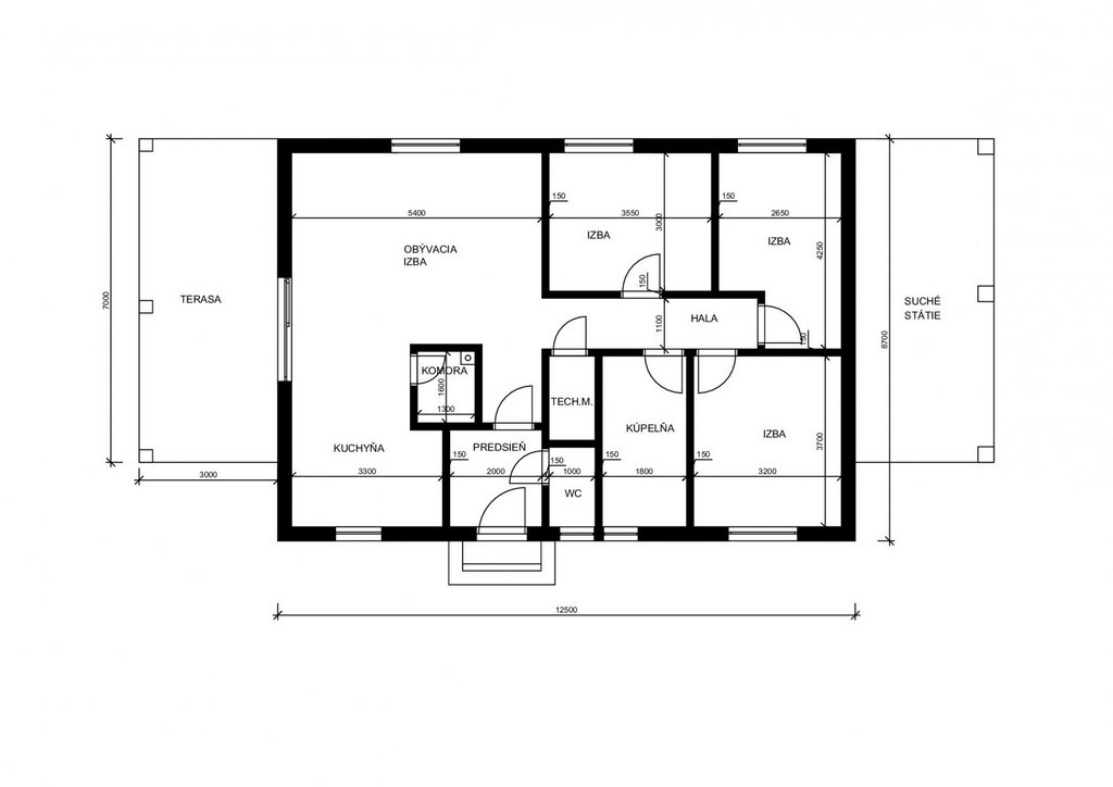
Obľúbený projekt Astra 1 s garážou je návrhom moderného domu s úžitkovou plochou 86 m2. Garáž je riešená suchým státím. Ďalšou výhodou je vonkajšia terasa, ktorú si viete ľahko premeniť aj na zimnú záhradu a tým tento oddychový priestor využívať celoročne.

To, čo robí domov funkčným, je charakteristické rozdelenie denného a nočného priestoru, ako aj rodičov a detí. V dennej zóne sa nachádza priestranná obývacia izba, jedáleň prepojená s kuchyňou a vstupom na terasu. Súčasťou kuchyne je aj praktická komora, ktorú ocenia gazdinky.

Súčasť stavby exteriér:

  • Prístavba garážového prestrešeného parkovania ( súčasť stavby )
  • vchodová monolitická plošina s prestrešením ( súčasť stavby )
  • terasová monolitická plocha s prestrešením ( súčasť stavby )

Základná špecifikácia

Typ stavby:

1

Obytné miestnosti:

4

Celková úžitková plocha:

85 m2

Obostavaný priestor:

106 m3

Zastavaná plocha:

126 m2

Vonkajšie rozmery obostavaného priestoru:

12,5 x 8,7

Výška hrebeňa strechy:

4.98 m

Typ a sklon strechy:

sedlová / 25°

Minimálne rozmery pozemku:

23 x 17 m

Produktový list / pôdorysy

Stiahnúť v PDF

Chcete zmeniť projekt?

Bezplatne a bez zmeny výslednej ceny je v projekte možné zo strany klienta robiť malé úpravy v dispozičnom riešení interiéru stavby (miestnosti, posúvať priečky ...). zrkadlovo otáčať stavbu. zmeniť umiestnenie terasovej plochy = v rámci projekčných možnosti

Galéria

 

© 2025 | GDPR | Ochrana osobných údajov | Tvorba webu GFXpulse